INFRASTRUTTURE VIABILITA
Stazioni MM
LOCALITA’: Gessate – Milano – Italia
COMMITTENTE: Metropolitana Milanese S.p.A.
LAVORI: Ristrutturazione e riqualificazione funzionale delle stazioni M2 ramo gessate
PRESTAZIONI: Elaborazione di fotosimulazione per la stazione M2 gessate, consistente nel eliminazione delle barriere architettoniche, tramite l’inserimento di due nuovi ascensori
ANNI: 2017
Nuova Strada Statale SS125
LOCALITA’: Sardegna, Tertenia – S. Priamo
CLIENTE: SOIL S.r.l. Milano
COMMITTENTE: ANAS S.p.a.
LAVORI: Nuova Strada Statale SS125 1 Lotto 2 Stralcio
PRESTAZIONI: Collaborazione alla progettazione definitiva degli imbocchi Nord e Sud della galleria Erbeis.
Scavi, ritombamenti finali e calcolo dei volumi.
ANNI: 2016
Conci Galleria
LOCALITA’: Bulgaria
CLIENTE: SOIL S.r.l. Milano
COMMITTENTE: Comune di Milano
LAVORI: Progetto delle armature dei conci per gallerie naturali
PRESTAZIONI: Collaborazione alla progettazione delle armature dei conci per gallerie naturali.
ANNI: 2015
Portali di Imbocco
LOCALITA’: Genova
CLIENTE: SOIL S.r.l. Milano
COMMITTENTE: SPEA Engineering
LAVORI: Nodo autostradale di Genova – Adeguamento del sistema A7-A10-A12
PRESTAZIONI: Collaborazione alla progettazione del progetto definitivo dei portali di imbocco della galleria di Voltri lato Genova. Carpenterie pianta sezioni e prospetti, imbocco carreggiata est-ovest e “Ciocia”.
ANNI: 2015
Piazzali di Imbocco
LOCALITA’: Genova
CLIENTE: SOIL S.r.l. Milano
COMMITTENTE: SPEA Engineering
LAVORI: Nodo autostradale di Genova – Adeguamento del sistema A7-A10-A12
PRESTAZIONI: Collaborazione alla progettazione del progetto definitivo degli imbocchi delle gallerie naturali di Amandola lato Savona e Voltri lato Genova. Scadi di piazzale, sviluppate berlinesi, fasi esecutive, sistemazioni finali muri in terre armate e rinforzate, muri in c.a., ritombamenti ed inserimento architettonico
ANNI: 2015
Nuova Strada Statale SS125
LOCALITA’: Sardegna – Tertenia – S.. Priamo – Italia
CLIENTE: SOIL S.r.l. Milano
COMMITTENTE: ANAS S.p.a.
LAVORI: Nuova Strada Statale SS125 1 Lotto 1 Stralcio
PRESTAZIONI: Collaborazione alla progettazione delle opere d’arti minore, n. 10 sottovia scatolari viari. Piante scavi, sezioni, tracciamenti carpenterie, armature e sistemazione finale
ANNI: 2015
Piste Ciclabili
LOCALITA’: Milano, Duomo-Porta Nuova – Italia
COMMITTENTE: Metropolitana Milanese S.p.A.
LAVORI: Piste Ciclabili
PRESTAZIONI: Redazione elaborati grafici relativi al tracciamento/demolizioni/costruzioni dei nuovi cordoli e pavimentazione relativa alla nuova pista ciclabile.
ANNI: 2013
Piste Ciclabili
LOCALITA’: Milano, viale Tunisia – Italia
COMMITTENTE: Metropolitana Milanese S.p.A.
LAVORI: Piste Ciclabili
PRESTAZIONI: Redazione elaborati grafici relativi al tracciamento/demolizioni/costruzioni dei nuovi cordoli e pavimentazione relativa alla nuova pista ciclabile.
ANNI: 2013
Strada di collegamento Zara-Fiera
LOCALITA’: Milano Viale Enrico Fermi – Italia
CLIENTE: Metropolitana Milanese S.p.A.
COMMITTENTE: Comune di Milano
LAVORI: Strada di collegamento Zara-Fiera – Lotto 2 Collegamento Eritrea-Zara
PRESTAZIONI: Computo metrico estimativo relativo alla Galleria Enrico Fermi
ANNI: 2011
Strada di collegamento Zara-Fiera
LOCALITA’: Milano Bovisa – Quarto Oggiaro – Italia
CLIENTE: Metropolitana Milanese S.p.A.
COMMITTENTE: Comune di Milano
LAVORI: Strada di collegamento Zara-Fiera – Lotto 2 Collegamento Eritrea-Zara
PRESTAZIONI: Computo metrico estimativo relativo al cavalcaferrovia FNM
ANNI: 2011
Expo - Piattaforme Zattere - Rho - Milano
LOCALITA’: Rho/Pero – Milano – Italia
COMMITTENTE: Expo 2015 S.p.A. – Metropolitana Milanese S.p.A.
LAVORI: Expo 2015
PRESTAZIONI: Zattere per alloggio di strutture turistico/ricettive. Collaborazione alla Progettazione esecutiva
ANNI: 2011 – 2013
Parcheggio in Piazza Abbiategrasso - Milano
LOCALITA’: Milano – Italia
COMMITTENTE: Metropolitana Milanese S.p.A.
LAVORI: Parcheggio di interscambio Abbiategrasso-M2
PRESTAZIONI: Redazione elaborati definitivi strutturali relativi ad un nuovo parcheggio multipiano in p.zza Abbiategrasso a Milano
ANNI: 2004
Piste Ciclabili - Milano
LOCALITA’: Milano – Italia
COMMITTENTE: Metropolitana Milanese S.p.A.
LAVORI: Piste Ciclabili
PRESTAZIONI: Collaborazione alla redazione di elaborati grafici relativi ai sottoservizi, progettazione piste ciclopedonali e relativi tracciamenti.
ANNI: 2013
Expo - Pensiline Parcheggi Biciclette - Rho - Milano
LOCALITA’: Rho Fiera Expo Milano – Italia
COMMITTENTE: Metropolitana Milanese S.p.A.
LAVORI: Nuove Pensiline di copertura ricovero biciclette
PRESTAZIONI: Collaborazione alla progettazione esecutiva strutturale in carpenteria metallica di due nuove pensiline di copertura posteggio biciclette ingresso Expo Triulza. Area interessata 500mq circa
ANNI: 2015
Ampliamento Autostrada A11 Firenze - Pisa
LOCALITA’: Firenze – Pisa Nord – Italia
COMMITTENTE: Autostrade per l’Italia – ANAS – SOIL S.r.l. Milano
LAVORI: Autostrada A11 – Ampliamento terza corsia
PRESTAZIONI: Collaborazione alla progettazione definitiva con sviluppo delle opere provvisionali: Pianta scavi, tracciamento, sviluppate e sezioni.
ANNI: 2012
Passerella Ciclopedonale Tangenziale di Bormio
LOCALITA’: Bormio – Sondrio – Italia
COMMITTENTE: Regione Lombardia – Provincia di Sondrio – CESI S.p.A.
LAVORI: Tangenzialina di Bormio
PRESTAZIONI: Progettazione strutturale delle spalle della passerella ciclopedonale.
ANNI: 2004
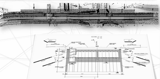
Ponte per stazione di Conversione Pallanzeno - Verbania
LOCALITA’: Pallanzeno – Verbania – Italia
COMMITTENTE: Terna – CESI S.p.A. Milano
LAVORI: Stazione di Conversione
PRESTAZIONI: Progetto di massima di nuovo ponte – Studio di fattibilita’ – Rendering, computi e relazioni.
ANNI: 2012 – 2013
Banchina Porto di La Spezia
LOCALITA’: La Spezia – Italia
COMMITTENTE: Autorita’ Portuale di La Spezia – Trevi
LAVORI: Prusst area centrale La Spezia / Val di Magra – Realizzazione banchina a giorno in corrispondenza del diffusore ENEL
PRESTAZIONI: Realizzazione delle fasi di costruzione della banchina attraverso la modellazione 3D dell’opera per il progetto definitivo.
ANNI: 2014
Pista Ciclabile tra Milano-Rho-Fiera-Expo
LOCALITA’: SS. del Sempione da Via Piave al Parco Fiera – Pero – Milano – Italia
COMMITTENTE: Provincia di Milano – Area infrastrutture e Mobilita’ – Settore Gestione Rete Stradale e Mobilita’ Ciclabile.
LAVORI: Collegamento ciclabile tra il confine di Milano, il polo fieristico Rho-Pero e l’area Expo
PRESTAZIONI: Rilievo dello stato di fatto del futuro tracciato della pista ciclabile, con l’ausilio di apparecchi fotografici su veicolo con sistema GPS by Cyclomedia
ANNI: 2012 – 2013
Marciapiedi Comune di Sotto il Monte - Bergamo
LOCALITA’: Sotto il Monte Giovanni XXIII – Italia
COMMITTENTE: Comune di Sotto il Monte Giovanni XXIII – Bergamo
LAVORI: Nuovi marciapiedi via Valsecchi e diverse
PRESTAZIONI: Rilievo, progettazione preliminare, definitiva – esecutiva, direzione lavori, contabilita’ con redazione di Perizia di Variante e collaudo
ANNI: 2003 – 2005
Azienda Regionale per i Porti di Cremona
LOCALITA’: Cremona – Italia
COMMITTENTE: Azienda Regionale per i Porti di Cremona
EN.SE. S.a.s. – Prof. Ing. Edmondo Vitiello
LAVORI: Riassetto della Conca del Porto di Cremona
PRESTAZIONI: Collaborazione alla progettazione definitiva-esecutiva e redazione del capitolato d’appalto per il riassetto della Conca del Porto di Cremona
ANNI: 2001 – 2002
Cavalcaferrovia - Rho - Milano
LOCALITA’: Rho – Milano – Italia
COMMITTENTE: Comune di Rho – EN.SE. S.a.s. – Prof. Ing. Edmondo Vitiello
LAVORI: Cavalcaferrovia di Rho. Campata ad arco centrale e rampa di accesso
PRESTAZIONI: Collaborazione alla progettazione e alla direzione lavori.
ANNI: 2002 – 2006
Porto di Gioia Tauro
LOCALITA’: Gioia Tauro – Reggio Calabria – Italia
COMMITTENTE: Impresa Lodigiani
LAVORI: Completamento infrastrutture del porto di Gioia Tauro
Edifici portuali
Viadotto di accesso al porto
PRESTAZIONI: Consulenza al progetto strutturale
ANNI: 1986 – 1990
Collegamento Malpensa con Autostrada Milano Laghi
LOCALITA’: Busto Arsizio – Varese – Italia
COMMITTENTE: Impresa Battaglia
LAVORI: Strada di collegamento dell’aeroporto Malpensa con l’autostrada Milano Laghi
Manufatto sulla ferrovia Milano-Gallarate al km. 21+679
PRESTAZIONI: Progetto e direzione dei lavori delle strutture
ANNI: 1961
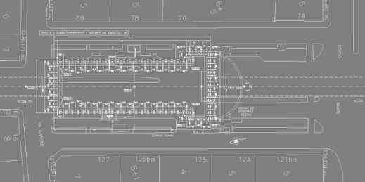
Metropolitana Milanese - EXPO 2015
LOCALITA’: Rho/Pero – Milano – Italia
COMMITTENTE: Metropolitana Milanese S.p.A.
LAVORI: n. 32 ponti (con impalcato removibile) di accesso all’area Expo 2015 di cui n. 6 in legno (pedonali) e nr. 24 in c.a. e c.a.p. (carrabili)
Manufatto sulla ferrovia Milano-Gallarate al km. 21+679
PRESTAZIONI: Progettazione definitiva ed esecutiva, strutturale
ANNI: 2011 – 2013
Metropolitana Milanese - AE FERMATA FORLANINI PASSANTE
LOCALITA’: AE Fermata Forlanini – Passante – Milano – Italia
COMMITTENTE: Metropolitana Milanese S.p.A.
LAVORI: Sottopasso ciclopedonale Nord/Sud, Pista ciclabile e prolungamento del sottovia
PRESTAZIONI: Progettazione definitiva, architettonica e strutturale
ANNI: 2007
Metropolitana Milanese - Metropolitana Automatica Torino
LOCALITA’: Torino – Italia
COMMITTENTE: Metropolitana Milanese S.p.A.
LAVORI: Metropolitana Automatica di Torino linea 1 – Nuova stazione DANTE
PRESTAZIONI: Progettazione esecutiva e strutturale
ANNI: 2005 – 2006
Societa' di trasformazione Urbana
LOCALITA’: Italia
COMMITTENTE: Soil Srl – Societa’ di trasformazione Urbana S.p.a.
LAVORI: P.R.U. “Stazione F.S. ex Boschi”
PRESTAZIONI: Collaborazione alla progettazione esecutiva strutturale
ANNI: 2010 – 2011
Linea A.V./A.C. Torino-Venezia
LOCALITA’: Treviglio-Brescia – italia
COMMITTENTE: ECS Srl – RFI Cepav Due
LAVORI: Linea A.V./A.C. Torino-Venezia, Tratta MI-VR – Lotto Funzionale Treviglio-Brescia (infrastrutture ferroviarie strategiche – legge obiettivo n. 443/01)
PRESTAZIONI: Collaborazione alla progettazione esecutiva strutturale
ANNI: 2011 – 2012
Raddoppio Linea Genova - Ventimiglia
LOCALITA’: Genova – Ventimiglia – Italia
COMMITTENTE: Soil Srl – RFI – ITALFERR
LAVORI: Raddoppio Linea Genova-Ventimiglia
PRESTAZIONI: Collaborazione alla progettazione definitiva strutturale delle Stazioni di Neghelli e Gastaldi
ANNI: 2010
