EDILIZIA PUBBLICA E DI SERVIZIO
Riqualificazione Architettonica e Strutturale mensa Aziendale
LOCALITA’: Sant’Antimo
COMMITTENTE: KEDRION S.p.a
LAVORI: KEDRION S.p.a.
PRESTAZIONI: Studio di fattibilita’, progettazione definitiva ed esecutiva architettonica, strutturale ed impiantistica. Pratiche amministrative
ANNI: 2016-2017
Palazzo Italia e Cardo EXPO 2015 Rho Fiera Expo
LOCALITA’: Rho Fiera Expo Italia
COMMITTENTE:Expo 2015 S.p.A.
LAVORI: Palazzo Italia
PRESTAZIONI: Supporto alla D.L. per la progettazione di cantiere relativa a Palazzo Italia e Cardo.
Redazione della documentazione necessaria alla Commissione di Vigilanza Interna e Prima Perizia di variante
ANNI: 2015
Nuovo Centro di Interscambio Ponte San Pietro
LOCALITA’: Ponte San Pietro – Bergamo – Italia
COMMITTENTE:A.T.P. Arch. Egizi – Prof. Vitiello
LAVORI: Nuovo Centro di Interscambio a Ponte S. Pietro
PRESTAZIONI: Studio di fattibilita’ e progetto preliminare.
Opera pubblica secondo la legge Merloni
ANNI: 2003 – 2006
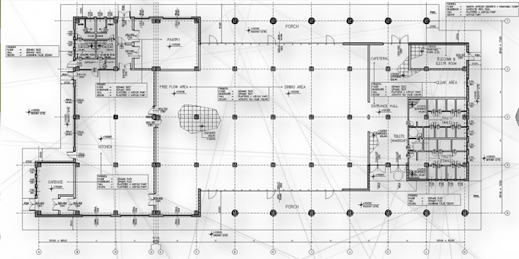
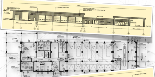
Mensa Socar - Baku
LOCALITA’: Socar – Baku
COMMITTENTE: Foster Wheeler Italiana S.p.A. – Corsico (MI)
LAVORI: Mensa di circa 2.300 mq.
PRESTAZIONI: Progettazione definitiva.
ANNI: 2013 – 2014
Vie d'Acqua Sud Expo 2015 - Milano
LOCALITA’: Via Valenza – Darsena – Milano – Italia
COMMITTENTE: Metropolitana Milanese S.p.A.
LAVORI: Vie D’Acqua Sud
PRESTAZIONI: Collaborazione alla progettazione di nuovi sotto-servizi
ANNI: 2013
Vie d'Acqua Sud Expo 2015 - Milano
LOCALITA’: Via Valenza – Darsena – Milano – Italia
COMMITTENTE: Metropolitana Milanese S.p.A.
LAVORI: Vie D’Acqua Sud – Canale e collegamento Darsena-Expo/Fiera
PRESTAZIONI: Collaborazione alla progettazione degli attraversamenti ciclopedonali rialzati (castellane).
ANNI: 2013
Poste Via Roserio Expo 2015 - Rho
LOCALITA’: Milano zona Roserio
COMMITTENTE: Metropolitana Milanese S.p.A.
LAVORI: Viabilita’ e sottoservizi all’interno delle Poste di Roserio
PRESTAZIONI: Collaborazione alla progettazione esecutiva della viabilita’, sottoservizi e sistemazione superficiale dell’intera ara Poste di Roserio con computi metrici estimativi.
ANNI: 2012
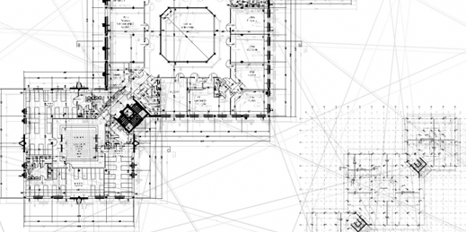
Caserma Vigili del Fuoco Socar - Baku
LOCALITA’: Socar – Baku – Arzebaijan
COMMITTENTE: Foster Wheeler Italiana S.p.A. – Corsico (MI)
LAVORI: Caserma Vigili del Fuoco di circa 3.100 mq.
PRESTAZIONI: progettazione definitiva
ANNI: 2013 – 2014
Garage Sotterraneo
LOCALITA’: Via Fra Cristoforo – Milano – Italia
COMMITTENTE: Immobiliare Oseifo
LAVORI: Garage Sotterraneo
PRESTAZIONI: progetto e coordinamento lavori sicurezza
progetto e direzione lavori strutturali
ANNI: 2001 – 2003
Nuova Caserma Guardia di Finanza - Monza
LOCALITA’: Monza – Milano – Italia
COMMITTENTE: Comune di Monza – Prof. Ing. E. Vitiello (Milano – Italia)
LAVORI: Nuova caserma della Guardia di Finanza
PRESTAZIONI: Collaborazione alla progettazione definitiva/esecutiva strutturale
ANNI: 2001 – 2002
Nuova Sede della Procura della Repubblica - Tribunale di Monza
LOCALITA’: Monza – Italia
COMMITTENTE: EN.SE. S.a.s. – Prof. Ing. E. Vitiello (Milano – Italy) – Comune di Monza
LAVORI: Nuova sede della Procura della Repubblica – Tribunale di Monza
PRESTAZIONI: Collaborazione alla progettazione definitiva strutturale
ANNI: 2003
Centro Civico "Curt dul Magnanel"
LOCALITA’: Carbonate – Como – Italia
COMMITTENTE: Comune di Carbonate
LAVORI: Ristrutturazione del Centro Civico “Curt dul Magnanel”
PRESTAZIONI: Validazione del progetto esecutivo
ANNI: 2009
